Briffons (63820)

Propriete 4 pièce(s) 1 chambre(s) 157 m²

1
20620 m²
1
Réf AHD516

En limitrophe entre la commune de Briffons et perpezat, plus précisément à la gare de bourgade, venez découvrir cette grande maison en bord de rivière à réhabiliter avec 2 hectares de terrain.

Elle est composée :
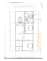
- Sous-sol : 2 grandes pièces de 64 m2 chacune avec une grande hauteur sous plafond
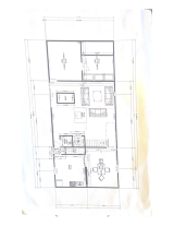
- REZ-DE-CHAUSSÉE : 1 cuisine de 30 m2, 1 salon séjour de 63 m2 et 1 pièce supplémentaire de 37 m2.
- 1er étage : 1 salle de bain de 9 m2, 1 chambre de 15 m2 et 1 grenier aménageable de 100 m2.

Toutes les huisseries ont été changées en double vitrage avec volet roulant. Les travaux d'aménagement intérieur sont à terminer ou à créer : électricité, placo, peinture... Les matériaux comme la cuisine, le placo, les gaines électriques, les rails, l'isolant, sont déjà sur place et peuvent être vendu avec supplément ( me contacter ).
La toiture est en tuile, et l'assainissement est à créer.

Concernant l'extérieur, nous retrouvons 2 hectares de terrain longeant la rivière, dont 2 prairies d'environ 4 500 m2 chacune et le reste en forêt. Idéal pour quelques animaux !

Attention, la mérule à était détectée dans le bâtiment, pour plus de renseignement, vous pouvez me contacter.

Les informations sur les risques auxquels ce bien est exposé sont disponibles sur le site Géorisques http://www.georisques.gouv.fr

Pour toutes informations complémentaires ou l'organisation d'une visite, n'hésitez pas à contacter Cohade Valentin de l'Agence Immobilière de la Haute Dordogne, par téléphone, au 06.88.45.11.54, ou par mail, à valentin.cohade@agencehautedordogne.fr

Bilan énergétique

Diagnostics énergetiques
Consommation énergétique
A B C D E F G
Emission de gaz à effet de serre
A B C D E F G
DPE vierge
A propos de ce bien Caractéristiques de ce bien
  • Surface 157 m²
  • terrain 2,06 ha
  • séjour 63 m²
  • 1 chambre(s)
  • 1 salle(s) de bain
  • cuisine américaine
  • 1 garage(s)
  • 3 niveau(x)

Composition

Composition de ce bien

Etage -1

  • Sous sol 128 m²

Rez-de-chaussée

  • cuisine 30 m²
  • salon/sejour 63 m²
  • réserve 37 m²

Etage 1

  • salle de bain 9 m²
  • chambre 15 m²
  • Grenier 100 m²

Financier

Informations financières
Prix net vendeur 40 000 €
Taxe foncière annuelle 211 €

Autour du bien

Découvrez le quartier

Simulation

Calcul des mensualités
* Champs obligatoires