Perpezat (63210)

Maison 16 pièce(s) 3 chambre(s) 337 m²

1
1173 m²
10
286 000 €
Réf AHD489

Vous êtes à la recherche d'un batiment de caractère pour y vivre et développer votre activité professionnelle bar, restaurant, chambre d'hotes ? Ce Bâtiment est parfait pour vous !

Ce bâtiment de caractère du 19ème siècle, ancienne école, est situé sur la commune de Perpezat au cœur du parc naturel régional des Volcans d’Auvergne à 40 km de Clermont Ferrand, à 10 min de A89 et à 5 km de Rochefort-Montagne et de ses nombreux services et commerces : collège et lycée, supermarché avec station de carburants, boulangerie ...


Si vous souhaitez ouvrir un bar/restaurant, une licence IV peut-être mise à disposition par la commune et tous les équipements de cuisine et de la salle de restaurant (matériel de cuisine, couverts, tables et chaises etc) sont compris dans le prix de vente.

Ce bâtiment se constitue de :

- Au sous sol : un local de 28 m2 avec accès extérieur, une arrière salle de 23 m2 donnant accès au WC, à la cave et à l'escalier montant au rez de chaussée. Idéal local commercial

- Au rez de chaussée : deux salles restaurant d'une capacité de 80 couverts avec bar et terrasse, une cuisine professionnelle avec chambre froide et WC.

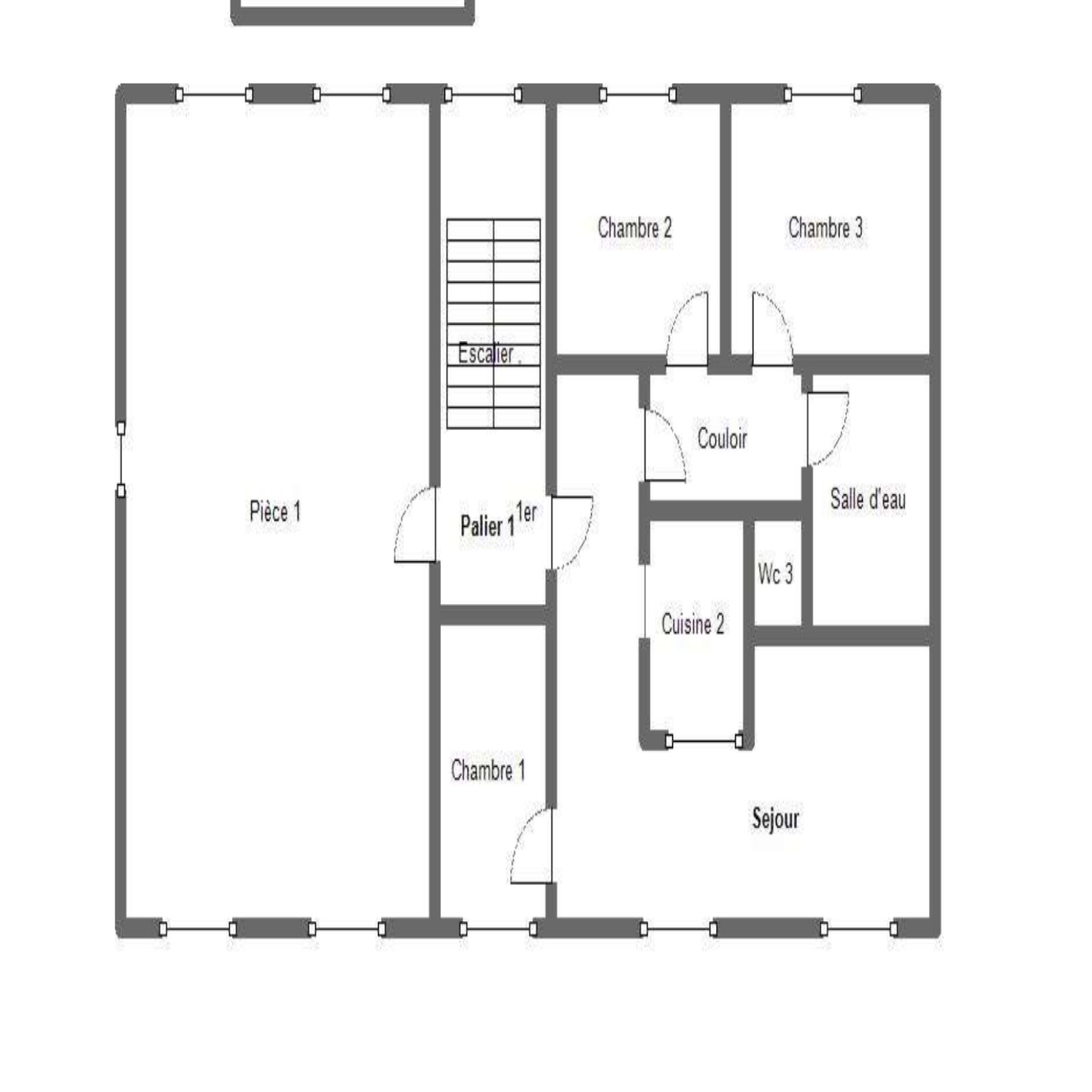
- A l'étage : une partie appartement de type F4 avec 2 chambres, un bureau, un WC séparé, une salle d'eau, une cuisine et un salon. Au même niveau, Nous avons également un grand plateau de 77 m2 non aménagé pouvant devenir, salle de conférence ou être transformé en chambres d'hotes.

Au grenier : 145 m2 aménageable pouvant offrir plusieurs possibilités.

A l'extérieur, nous allons retrouver environ 850 m2 de terrain pouvant être agrandi avec environ 2 000 m2 supplémentaires suivant votre projet.

Ce bâtiment en pierre possède une charpente en bois et une couverture en ardoise en trés bon état. Le chauffage du bâtiment est un chauffage au gaz et le RDC dispose également d’un chauffage au bois dans la salle de restaurant. La chaudière et le bâtiment a fait l’objet d’un entretien régulier. Le bâtiment est intégralement aux normes d’accessibilité et est raccordé au tout à l'égout.

Pour plus de photos, n'hésitez pas à aller sur notre site : agencehautedordogne.fr

Les informations sur les risques auxquels ce bien est exposé sont disponibles sur le site Géorisques http://www.georisques.gouv.fr

Vous souhaitez en savoir plus ou organiser une visite, n'hésitez pas à contacter Cohade Valentin, par téléphone, au 06.88.45.11.54, ou, par mail, à valentin.cohade@agencehautedordogne.fr.


Bilan énergétique

Diagnostics énergetiques
Consommation énergétique
A B C D E F G
Emission de gaz à effet de serre
A B C D E F G
DPE vierge
A propos de ce bien Caractéristiques de ce bien
  • Surface 337 m²
  • terrain 1 173 m²
  • 3 chambre(s)
  • 1 salle(s) d'eau
  • cuisine séparée (équipée)
  • 10 parking(s)
  • exposition Sud
  • 4 niveau(x)
  • 2 étage(s)
  • cave
  • terrasse
  • accès handicapé

Composition

Composition de ce bien

Rez-de-chaussée

  • Salle restaurant 134 m²
  • Cuisine pro 42 m²
  • WC 14 m²

Etage -1

  • Local Commercial 28 m²
  • Arrière salle 23 m²
  • WC 3.3 m²
  • cave 19 m²

Etage 1

  • Salle conférence 77 m²
  • Appartement 78 m²

Etage 2

  • Grenier 145 m²

Financier

Informations financières
Prix de vente honoraires TTC inclus 286 000 €
Prix net vendeur 270 000 €
Prix de vente honoraires TTC exclus 270 000 €
Honoraires TTC à la charge acquéreur 5,93 %
Taxe foncière annuelle 920 €

Autour du bien

Découvrez le quartier

Simulation

Calcul des mensualités
* Champs obligatoires